О ПОМЕЩЕНИИ
По аренде обращаться: Александр +7-916-244-04-44
Торговое помещение.
Первая линия, выход на Нижний Сусальный переулок.
Выход из метро Курская и D2/D4 в нескольких шагах от здания.
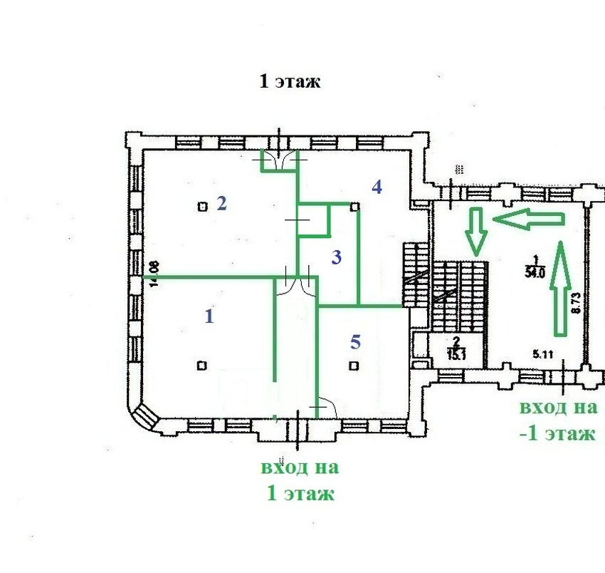
Помещение с окном. На плане помещение 2
Есть место для рекламных вывесок.
Ремонт за выездом арендатора.
Строение:
1
Этаж:
1
Метраж:
53 м²
Назначение:
торговое
Стоимость за месяц:
295 000 руб.
Ставка за кв.м в год:
66 800 руб.
Состояние:
с отделкой
Реклама, в соответствии с ФЗ "О рекламе" от 13.03.2006 №38-ФЗ
